xcamping
motorradtraeger
hallo
Links zu ebay oder Amazon sind Werbelinks. Wenn Sie auf der Zielseite etwas kaufen, bekommen wir vom betreffenden Anbieter Provision. Es entstehen für Sie keine Nachteile beim Kauf oder Preis.

Heizungsoptimierung Carado T449/ Sunlight T69 1, 2, 3, 4, 5 ... 7


meikel01 am 28 Dez 2014 20:55:45

Moin,
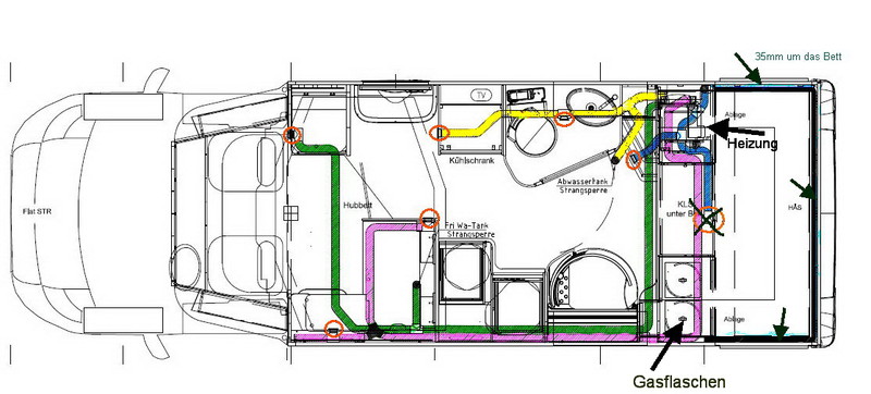
hier einige Bilder vom einbau der 2 Y Abgängen, sowie der Strangsperre und dem Lüfter

138081380613805138041380313802

Nach dem Einbau und des Ausprobieren, war ich allerdings etwas enttäuscht dessen was vorne ankommt.
Aus dem Ausströmer links neben der Eingangstür, kommt ohne Lüfter ein wesentlicher stärkerer Luftstrom an.
Hab schon gedacht, ob zwischen Zusatzlüfter und den vorderen Auslässen was drin steckt?
Wie isses bei Euch?

Michael

Anzeige vom Forum

Hier findest Du vielleicht schon, was Du suchst: Artikel auf eBay oder versuchs hier bei Amazon

JackSchmidt am 29 Dez 2014 03:14:45

Hallo Michael,
das sieht gut aus!

Da Du nur die Verteilung der Luft aus der Truma 6 geändert hast, ist es klar, dass die zusätzliche Luft die Du jezt an der Düse unter dem Tisch und an den Sitzen im Fahrerhaus erhältst irgendwo her kommen muss. Deswegen kommt an den anderen Düsen jetzt weniger an.

Aber das war ja auch der Sinn des ganzen. Eine bessere Verteilung ;-)

Die Ausgangssituation war hinten Sauna und an den Fahrersitzen zu kalt, dass sollte jetzt bei geschlossener Strangsperre deutlich besser sein.

Schaltet das Gebläse bei dir mit dem Fühler ein und aus?
Steht der Schalter des Gebläses auf Stufe 2?

Schau mal mit einer Taschenlampe, von oben, hinter die Blend an dem Fenster des Esstisches.
Dort war bei mir eine Delle, die ich mit einer langen Hekelnadel wieder raus bekommen habe.

burnie08 am 29 Dez 2014 10:14:18

meikel01 hat geschrieben:Moin,
hier einige Bilder vom einbau der 2 Y Abgängen, sowie der Strangsperre und dem Lüfter....
....kommt ohne Lüfter ein wesentlicher stärkerer Luftstrom an.

Hallo Michael,
erst mal danke für die Bilder.
Daß ohne Lüfter dort wesentlich "mehr" Luft kommt ist logisch, denn der Lüfter ist ja im Ruhezustand nicht kpl. offen,
da sind ja Ventilator-Lamellen drin, die, wenn nicht in Betrieb den "normalen" Luftstrom aufhalten :wink: .
Daher an der Eingangstür mehr Luft.
und guten Rutsch
:snowman:
Burnie

Anzeige vom Forum


andwein am 29 Dez 2014 12:01:14

Ich habe ja keinen T449, aber die Zeichnung der Heizungsanlage ist ja recht gut.
Meine Frage zur Optimiertung wäre:
Warum werden nur 2 Auslässe aus der Truma benutzt? Hat die nur zwei?
Wenn ja, dann könnte man, mit weiterem Umbau, einen Auslass ohne Ausströmer, für den Fahrerhausbereich benutzen. Keine Ahnung, ob Platz ist, aber im verbauten Bereich (Dusche, Bad, Sitzbank) findet man vielleicht Platz für ein 2. Rohr.
Man hätte dann zwei Truma Auslässe für die Originalheizung und den dritten mit Gebläse etc direkt für den Fahrerhausbereich
Die Ausströmer für Dusche/Bad/Sitzbank nehmen viel Druck weg.
Wie gesagt, ich kenne das Fahrzeug nicht, ich gehe nur von der Zeichnung aus.
Andreas

JackSchmidt am 29 Dez 2014 16:32:11

Hallo Andreas,
gute Idee.
Die Überlegungen hatte ich auch erst. Habe sie dann aber verworfen, weil es jetzt schon sehr eng ist an den Außlässen der Truma 6. Auch ein weiterer Strang nach vorne ist nicht so einfach möglich, da der Boden unter dem Esstisch zwar doppelt ist, aber der Wassertank in der Sitzbank am Esstisch den Weg versperrt. Deswegen springt die original Leitung in einen aufgedoppelten Bereich unter dem Fenster am Esstisch. Für eine weitere Leitung ist das zu eng. Der Gang ist nicht aufgedoppelt.

Davon abgesehen habe ich keinen merklichen Unterschied festgestellt wenn der Auslass unter dem Tisch geschlossen ist. Einen weiteren Auslass gibt es in dem Strang beim 2014 Modell nicht. Nur der unter dem Esstisch und die zwei an den Sitzen.

Die Idee mit der Hekelnadel habe ich übrigens bei dir geklaut ;-)

andwein am 31 Dez 2014 14:21:37

Ja, manchmal ist es schon gut wenn man auch das Werkzeug der Frauen kennt.
(Bitte kein Aufschrei, ich weiß, dass die Jungs heute Häkeln im Werkunterricht haben, aber die haben noch kein Wohnmobil)
guten Rutsch, Andreas

schummi100 am 31 Dez 2014 15:14:32

hallo
Hab die Luftverteilung mal für einen Sunlight T67 gemalt


Grün = Heizung
Rot = Luftschläuche
Schwarz = Luftausströmer (den im Bad hab ich vergessen)

JackSchmidt am 31 Dez 2014 20:42:35

Hallo Schummi,

prima. Je mehr Pläne von verschiedenen Modellen hier online sind, desto leichter wir der Umbau für die nächsten mit dem Modell.

Hast Du auch ein Zusatzgebläse eingebaut? Wenn ja, wäre eine Angabe in deinem Plan gut für den nächsten mit deinem Modell.

Allen ein schönes neues Jahr! :bia:

schummi100 am 01 Jan 2015 11:08:47

Hi
Du hast recht je mehr bilder des zu einfacher wird es.
Ich hab noch kein zusatzgebläse da mir das Trumagebläse eigendlich zu teuer ist .Hier suche ich noch nach einer alternative und
hab da sowas im auge :
Link zum eBay Artikel

Das in Verbindung mit deiner Tempsteuerung und einen Schalter.
Aber zurzeit warte ich auch auf meine bestellte Truma CP plus und wenns dann wieder etwas wärmer wird werde ich mich dem Einbau hingeben

Hab im Bild mal die Strangsperre und das Zusatzgebäse eingezeichnet (an den Stellen wo ich einbauen würde)
url=https://www.wohnmobilforum.de][/url]

Grün = Heizung+ Zusatzgebäse
Blau = Strangsperre
Rot = Luftschläuche
Schwarz = Luftausströmer (den im Bad hab ich vergessen)

Gast am 01 Jan 2015 11:33:28

Hallo

Wir kommen gerade mit unserem LMC-657G von einer Tour zurück. Auf dieser waren es nachts 6 Grad minus. Das Phänomen hinten heiß vorne kalt kannten wir schon aus dem vorherigen LMC. Bei dem neuen ist die Luftverteilung fast genau so wie es hier beschrieben wurde. Das ist wohl ein grundsätzliches Problem aller Teilintegrierten. Es ist so auch auszuhalten, könnte aber besser sein. Eine dicke Decke über das Armaturenbrett bringt auch noch was. Und dann noch die Außenisolierung, mehr kann ich nicht machen. So geht es auch einigermaßen aber es ist hinten einfach viel zu warm. Wenn ich das richtig deute hat eine Truma C6002 vier Auslässe. Die beiden kurzen rechten sorgen für die Wärme hinten (zu heiß) und die beiden langen linken gehen nach vorne (zu kalt). Aus der Düse die vorne den Fahrerraum heizen soll kommt fast kalte Luft raus. Wie kann ich es steuern das die Luftmenge im heißen Strang weniger wir und diese in den längeren linken Strang gelangt. Ich denke es geht nur mit einem Abzweig vom rechten in den linken Strang und einer Strangsperre im rechten heißen Strang oder? Gelang so mehr warme Luft nach vorne oder geht s nur mit einem Gebläse? Oder reicht eine Strangsperre in den rechten Rohren wie es unten in der ,, pm,, beschrieben wurde?

LongJohn

Zitat aus pm

Die Wärmeversorgung einzelner Bereiche, beispielsweise oft überheizter Bäder, lässt sich mit Strangsperren regulieren. Das ist wirkungsvoller, als nur die Ausströmer zu schließen; installiert man die Strangsperre direkt nach dem Gebläse und nicht erst kurz vor dem Ausströmer, kommt der Luftüberschuss auch tatsächlich den anderen Strängen sprich Wohnbereichen zugute.

JackSchmidt am 01 Jan 2015 11:36:23

Hallo Schummi,

hatte auch nach Alternativen gesucht, da mir der Preis nicht gefallen hat. Allerdings konnte ich nichts passendes finden.

Bei dem von Dir ausgesuchten Gebläse steht 2,5Ah. Wenn Du jetzt im Winter frei stehst bekommst mit der Leistung schnell an deine Grenzen mit der Batteriebank. Das GebläseTruma hat eine Stromaufnahme von 0,23 / 0,5 A.

Eine Solaranlage liefert im Winter auch nicht die Welt.

Bis zu welcher Temperatur ist das Zusatzgebläses geeignet? Ich hatte mit einem Womo Experten vor dem Einbau gesprochen. Er hatte einem alternativen Lüfter für 20€getestet. Das Flügelrad im Lüfter ist geschmolzen.

Wenn Du was passendes gefunden hast, sag Bescheid.

JackSchmidt am 01 Jan 2015 11:41:31

HalloLongJohn,

teste einfach mal die Strangsperre wie von dir beschrieben. Habe ich auch so gemacht. War mit der Verbesserung noch nicht zufrieden. Wenn es dann nicht reicht, kannst Du immer noch ein Zusatzgebläse einbauen.

andwein am 01 Jan 2015 13:19:29

Na dann stelle ich auch mal eine Zeichnung ein. Ist zwar kein T449, aber die Aufteilung der Wärme/luftströme ist wichtig.
Wichtig ist auch, dass bei langen Rohren möglichst wenig Ausströmer sitzen, den die reduzieren den Druck und wenn nach einem offenen Ausströmer noch ein Gebläse kommt, zieht dieses kalte Nebenluft anstatt warme Luft von der Heizung.
Hier ist es ein Alkovenaufbau mit Hecksitzgruppe.

Ich habe die Hersteller-Strangverlegung geändert und neu aufgeteilt:
1x Strang für Heckgruppe/Bett mit 34mm Düse für Skistiefeltrocknung, 5x Ausströmer
1x Strang für Bad, mit Y-Verteiler und 34mm Rohr mit Düsenende für Stauraum, 2x Ausströmer
1x Strang für Alkoven mit Trumavent im Alkovenstrang, Rohrreduzierung von 62mm auf 34mm Lochrohr, kein Ausströmer
1x Strang für Dinette und Abwassertankheizung über Strangsperre, 2x Ausströmer
Andreas

euroduck am 01 Jan 2015 13:32:59

Hi,
ich habe den Ventilator von Komet (Kühlschrankventilator z.B. bei Berger) mit 2 Adapterstücken verwendet, obwohl ich den Truma-Ventilator auch noch im Bestand habe. Nach meiner Meinung eignet er sich besser, da er kleiner baut und ausgeschaltet weniger Luftwiderstand bietet. Wenn er nicht unmittelbar hinter der Heizung installiert ist, dürften sich auch keine thermischen Probleme ergeben.


Jürgen

JackSchmidt am 01 Jan 2015 15:44:28

Hallo Jürgen,
der Hinweis auf die Fa. Comet war gut.
Dort gibt es auch heißluftgeeignete Lüfter wie bei Truma. Die Leistungsdaten sind etwa gleich. Den Preis habe ich noch nicht gefunden.

--> Link

euroduck am 01 Jan 2015 16:59:43

Hallo Jack,
hast recht, Komet schreibt sich Comet und verspricht mehr Erfolg beim googeln.
Habe Deinen Bericht bzgl. Warmluftverteilung mit Interesse gelesen. Ich habe das Problem, das beim A361 ähnlich gelagert ist auch schon mit Erfolg gelöst. Ich habe einige Bypässe gelegt und habe besagten Ventilator (im Strang Richtung Dinette) über den in der Truma C verbauten Ventilator angesteuert. Zusätzlich kann ich die Drehzahl des Ventilators stufenlos regeln, so dass nervige Geräusche minimiert werden können. Für mich war wichtig, den Ventilator sowohl in der Heiz- als auch in der "Durchlüftungsphase" nutzen zu können.


Jürgen

JackSchmidt am 01 Jan 2015 17:19:01

Hallo Jürgen,

schön wäre ein Plan wie genau Du die Änderungen für dein Modell durchgeführt hast.

Mit den Infos die hier von verschiedenen Seiten kommen, sollte dann jeder interessierte in der Lage sein, die für ihn beste Lösung umzusetzen.

Gut finde ich, dass wir jetzt auch verschiedene Zusatzgebläses für Heizungen haben, da eventuell nur begrenzt Platz zur Verfügung steht und das Gebläse von Truma höher aufbaut.

ralf123 am 02 Jan 2015 10:34:23

Wenn jemand eine Bezugsquelle für den Comet Rohrlüfter hätte würde ich mich freuen... :)

weser13 am 02 Jan 2015 11:17:41

Empfehlung: googeln/Ebay

aus NI
und ein gutes neues Jahr 2015 allen Forumsteilnehmern!

meikel01 am 02 Jan 2015 20:50:38

Moin....................

so über Silvester eingehend ausprobiert und................................... Klasse.
Das mit dem 2 Stufigen Lüfter geht sehr gut. Die Geräusche halten sich in Grenzen.
Auf Stufe 1 nicht wahr zu nehmen, Stufe 2 ähnlich wie bei der Heizung ein Pusten............ iss OK.
Achjaa, eine Temperatur regelung habe ich nicht gemacht.
Schalte den Lüfter je nach bedarf, kein Problem.

Vielen Dank nochmals für die Tips

Gast am 03 Jan 2015 10:13:20

Hallo

Wenn ich Morgens die Heizung höher stelle, läuft das Gebläse wir bekannt schneller. Da ich Frühaufsteher bin und meine Frau dann oft noch im Bett liegt ist das 35 mm Bett-Lüfterrohr schon recht laut. Diese Luftmassen werden da hinten garnicht benötigt. Ein 35 mm Strangsperre gibt es nach meinem Wissen nicht um den Luftstrom zu reduzieren oder ? Es gibt aber Kugelhähne in allen größen. Würden diese wohl Geräusche von sich geben wenn man so ein Hahn in den Strang setzt ? Muss natührlich aus Metall sein und nicht wie auf dem Foto aus Kunststoff.


LongJohn

JackSchmidt am 03 Jan 2015 10:34:20

HalloLongJohn,

das 35mm Lüftunsrohr um das Bett habe ich auch. Meine Strangsperre sitzt aber nah an der Heizung. Bevor sich das Rohr reduziert. Eine Strangsperre sollte auch immer so nah wie möglich an der Heizung sitzen, sonst verschenkst Du Leistung des Gebläses.

Grundsätzlich sollte ein für heiß Wasser geeigneter Kugelhahn auch dafür funktionieren. Wie laut das beim eindrosseln wird muss Du testen. Ich würde aber einen kleinen Zwangsdurchlass lassen, damit Du kein Kondensat am Bett und den hinteren Fenstern bekommst. Haben die Strangsperren schon ab Werk.

Am besten malst Du mal einen Plan deiner Warmluftverteilung. Das hat mir geholfen besser den Einstig zu finden.

Mann am 03 Jan 2015 10:40:23

das 35mm Rohr ums Bett rum ist bei mir kpl. raus, braucht kein Mensch, die Eigenhitze der Heizung im Schlafbereich reicht zu, meine Meinung.

JackSchmidt am 03 Jan 2015 10:55:51

Hallo Mann,

wenn es bei Dir so geht, prima.

Das hängt aber vom Aufbau ab. Mein Rohr heizt hinter den Wandverkleidungen an den Fenstern, unter den großen Wandschänken und die Heckgarage.
Rausreisen würde ich das nicht.....

Gast am 03 Jan 2015 11:07:28

JackSchmidt hat geschrieben:HalloLongJohn,

das 35mm Lüftunsrohr um das Bett habe ich auch. Meine Strangsperre sitzt aber nah an der Heizung. Bevor sich das Rohr reduziert.


Hallo Jack

Ich habe mich immer nur im Fahrzeuginneren auf das 35mm Rohr konzentriert. Ein Blick in den Heizungskeller :D brachte neue Erkenntnisse. Es ist bei mir auch so das vor dem 35mm Rohr ein Meter 65mm Rohr von der Heizung abgeht. Werde logischer weise die Strangsperre dort einsetzen.
Da ich das Fahrzeug noch nicht lange habe, kann ich im Moment nur vermuten wo LMC die Rohre genau verlegt hat.
Ich habe die an ge-Mailt ob es darüber einen Plan gibt, bin mal gespannt ....

LongJohn

andwein am 03 Jan 2015 13:02:15

Mann hat geschrieben:das 35mm Rohr ums Bett rum ist bei mir kpl. raus, braucht kein Mensch, die Eigenhitze der Heizung im Schlafbereich reicht zu, meine Meinung.

Achtung: Die Menschheizung reicht manchen, aber die ausgeschiedene Feuchtigkeit muss weg. Vor allem in Alkovenmodellen sollte das Rohr bleiben, sonst wird es in den Ecken feucht.
Andreas

Mann am 03 Jan 2015 15:37:35

andwein hat geschrieben:Achtung: Die Menschheizung reicht manchen, aber die ausgeschiedene Feuchtigkeit muss weg. Vor allem in Alkovenmodellen sollte das Rohr bleiben, sonst wird es in den Ecken feucht.
Andreas


da mögst du Recht haben, wir sind Fenster offen Schläfer bei jedem Wetter und haben keinen Alkoven.

ralf123 am 05 Jan 2015 20:11:23

weser13 hat geschrieben:Empfehlung: googeln/Ebay


Der Comet Lüfter ist nicht zu finden. Multivent gibts überall. :(

Rofalix am 07 Jan 2015 14:52:56

Super Thema mit super Tipps, vielen Dank.
Wir sind jetzt im ersten Winterurlaub --> Link mit den allgemeinen Problemen der Wärmeverteilung in einem Orangecamp/Sunlight/Carado.

Das zusätzliche Gebläse könnte man auch ein Truma Gebläse --> Link einbauen, oder? Das soll sich gemäss Beschreibung automatisch der Heizung anpassen. Oder sehe ich da was falsch?

Rolf

JackSchmidt am 07 Jan 2015 14:58:33

Hallo Rolf,
so wie ich das lese, ist es das Gebläse, dass an der Truma montiert ist. Also nicht geeignet für unser Zwecke.

andwein am 07 Jan 2015 18:43:51

Rofalix hat geschrieben: Das zusätzliche Gebläse könnte man auch ein Truma Gebläse --> Link einbauen, oder? Rolf

Das ist nur für die Truma S 3002 und 5002. Für die 6000/Combi4+6 gibt es nur ein Gebläse ohne Temp-Regelung
Andreas

antara am 09 Jan 2015 02:01:01

Hallo zusammen!
Ich lese schon seit Tagen diese interessanten Vorschläge zur Temperaturverbesserung im vorderen Wohnbereich.
Bei mir ist es genau wie bei vielen. Die Heizung C6002 ist bei meinem Teilintegrierten mit herkömmlichen Grundriss hinten in der Heckgarage unter dem Querbett verbaut und hat vier Ausströmer.
Einer geht natürlich direkt hoch rund um den Schlafbereich, wo es natürlich sehr angenehm warm ist. Im vorderen Teil im Wohnbereich ist es wegen der Länge der Heizungsrohre dagegen alles andere als angenehm. Umgekehrt wäre es natürlich besser!
Mein erster Gedanke war natürlich den Ausströmer in den Schlafbereich stillzulegen, damit vorne mehr Warmluft ankommt. Eine Anfrage bei Truma brachte aber folgendes Ergebnis. Wenn ich einen der vier Ausströmer stilllege, bringen die restlichen drei nicht mehr Wärme!! Im Gegenteil könnte der stillgelegte Ausströmer zu einer Überhitzung der Anlage und deshalb zu einer Abschaltung der Heizungsanlage führen! Seht ihr das genauso???? Werde diesen Sachverhalt auf der CMT nächste Woche bei Truma genauer hinterfragen, da dies für mich nicht ganz logisch ist! Die vier Ausströmer haben doch nicht etwa jeder eine eigenes Gebläse??
Als erste Maßnahme habe ich trotzdem weiter oben eine Strangsperre in den Strang zum Wohnbereich eingebaut, da ein Schlafen in der "Hitze" kaum möglich war. Ganz ausschalten wollte ich den Strang auch aus dem Grund der Belüftung der hinteren Staukästen aber doch nicht.
Als weiteres habe ich den zweiten Strang, der alleinig zum Sanitärraum (liegt zwischen Heckbett und Wohnbereich) führt, weiter in den Wohnbereich verlängert. Jetzt habe ich deutlich mehr Wärme im Wohnbereich, aber immer noch nicht ausreichend.
Nach den Empfehlungen hier habe ich heute die Heckgarage ausgeräumt und die Truma teilweise freigelegt. Kaum Platz vorhanden um über zwei Y-Stücke einen Teil der Warmluft vom Schlafbereich in den Strang zum Wohnbereich umzuleiten. Werde jetzt morgen versuchen, ob es von der Oberseite möglich ist. Ansonsten müsste ich größere Ausbauten vornehmen, was kaum möglich ist.
Hoffe, dass ich Erfolg habe!
Helmut

Gast am 09 Jan 2015 03:21:56

Hallo Helmut

Das könnte auch mein Text sein :-o DaSind wohl alle Ti gleich. Ich habe LMC mal angeschrieben ob es ein Plan gibt in dem eingezeichnet ist wo die Rohre her laufen. EinTag später hatte ich einen. Bei mir verschwinden manche Rohre und tauchen irgendwo wieder auf.
Gestern habe ich beim Händler angerufen. Dem war das natürlich auch alles bekannt. Er sagte, am besten ist wenn man von einem Strang durch ein Y-Stück den Überschuss in den Strang noch vorne leitet. Hinzu kommt noch bei LMC das in den Stangen nach vorne einige Löcher sind. Diese hinterlüften z.b. die Küchenmöbel.
Der Händler sagte das ich mal vorbei kommen soll, dann würde man mir so ein Y-Stück einbauen.Es gibt also doch noch Händler die Service groß schreiben :razz:
LongJohn

JackSchmidt am 09 Jan 2015 08:42:27

Hallo Helmut,
Du bist auf dem richtigen Weg.
Die Truma 6 hat nur ein Gebläse mit 4 Ausgängen. Eventuell ist es aber strömungstechnich besser, einen der Ausgänge auf den Strang nach vorne zu leiten.
Ich habe es so gemacht und bin nach dem Einbau des Zusatzgebläses zufrieden. Ohne Gebläse war es aber noch nicht zufriedenstellend.
Wenn Du erfolgreich umgebaut hast, stell hier doch bitte den Plan ein, damit es der nächste mit dem selben Womo einfacher hat.

mantishrimp am 09 Jan 2015 21:59:58

Hallo,

unser Womo war auch so ein Problemfall in Sachen Warmluftverteilung...
Laika war auch der Meinung das die Heizung unter dem Bett sinnvoll ist, ich sah das anders.
Habe dann die komplette Luftverteilung geändert, ein Strang wärmt das Heckbett, die Garage und das Bad. Die drei anderen Stränge gehen nach vorne, Strang 1 ist für die Küche, Abwassertank und endet mit einem Ausströmer in der Sitzbank. Strang 2 und 3 gehen am Frischwassertank vorbei und die Ausströmer sitzen weit vorne an der Seitenwand. Von einem geht noch ein dünnes Warmluftrohr in die TI Hutze.

antara am 11 Jan 2015 01:56:31

Hallo,
heute Mittag habe ich jetzt versucht, nach Freilegung der Heizung in der Heckgarage über zwei Y-Stücke einen wesentlichen Teil der Warmluft vom Strang in den darüberliegenden Heckschlafbereich in den wesentlich längeren Strang nach vorne in den Wohnbereich umzuleiten. War etwas fummelig wegen der Platzenge.
Das Ergebnis war allerdings enttäuschend! Das Gebläse schaffte es trotz Strangsperre im Strang zum Schlafbereich kaum, deutlich mehr Warmluft nach vorne in den Wohnbereich zu transportieren. Der Weg ist einfach zu lang. Wie schon oben beschrieben hilft wohl nur ein zusätzliches Gebläse. Aber der Versuch wars wert.

andwein am 11 Jan 2015 13:04:58

Diese Vorgehen, zwei Truma Ausgänge in ein Rohr zusammenzuführen, bringt nichts und kann zu Störungen an der Truma führen.
Du brauchst entweder eine Leitung ohne weitere Ausströmer und Gebläse oder du probierst es mit zwei Rohren ohne weitere Ausströmer.
Andreas

Gast am 11 Jan 2015 13:18:17

antara hat geschrieben:Hallo,

Das Ergebnis war allerdings enttäuschend!


Hallo

Überschüssige Luft aus einem Strang in einen anderen zu lenken hat der Werkstattmeister mir vorgeschlagen als in an Telefon von meinem Problem berichtete.Ich hatte vor den blauen Strang der in die Heckgarage geht, um zu legen in den grünen der nach vorne geht.Die gelben und die blauen Stränge haben zu viel und die violetten und grünen haben zu wenig. Aber wenn`s nichts bringt :( muß dann wohl ein Gebläse her.



LongJohn

JackSchmidt am 11 Jan 2015 13:29:59

Hallo,
das es nichts bringt, kann ich nicht bestätigen. Es war nur nicht so stark wie ich es gerne gehabt hätte.
Das Gebläse hat es dann geschafft.
Entscheidend ist der Einbauort des Gebläses. Möglichst auf haber Strecke zwischen Heizung und den entferntesten Ausstöhmer. Aber noch vor dem ersten Ausströhmer.

Da die Rohre innen Wellen haben, ist der Luftwiderstand nach einer gewissen Länge einfach zu hoch. Deswegen die Unterstützung mit dem Gebläse auf halber Strecke.

Ideal wäre zwei 60mm Leitungen in eine 80mm Leitung zu führen. Das dürfte aber aus Platzgründen selten möglich sein.

antara am 12 Jan 2015 00:25:07

Hallo,
so hatte ich es auch gemeint. Es kommt selbstverständlich vorne im Wohnraum subjektiv gesehen mehr Warmluft an, aber bei weitem nicht das, was ich eigentlich erwartet (gehofft) hatte. Mit einem zusätzlichem Gebläse in dem Strang weiter vorne aber vor dem ersten Ausströmer würde m.E., wie schon beschrieben, ein deutlich besseres Ergebnis bringen.
Jetzt warte ich vor weiteren Maßnahmen erstmal die ersten Übernachtungen im Frühjahr ab.

burnie08 am 04 Feb 2015 15:18:26

Endlich geschafft!
Die Änderungen sind soweit abgeschlossen und alles funktioniert prima.
Lediglich das Strömungsgeräusch des Motors ist etwas laut, aber da lässt sich ja recht einfach was machen.
Nochmal herzlichen Dank an Jack, der diesen Thread gestartet hat und mir in speziellen Fragen sehr hilfreich war.
Ich habe die Anleitung noch mit ein paar Bildern aus dem T69 ausgestattet (ist aber alles so gut wie identisch mit dem T449)
und stelle sie hier nochmal zum Download bereit: --> Link
Fröhliches Schrauben
Burnie

JackSchmidt am 04 Feb 2015 15:29:51

Hola Burnie,

prima umgesetzt und ein tolle Zusammenfassung im PDF. :daumen2:

Tins am 23 Feb 2015 11:41:30

Hallo, ich bin neu hier bei Euch. Ich habe auch seit letztem Herbst ein Carado T447 Wohnmobil. Wir waren das letzte Wochenende damit das erste mal unterwegs. Die Temperaturen lagen etwas über 0° Also nicht sooo kalt. Unser Sohn hat im Heckbereich geschlafen, wir haben die Tür zum Wohnbereich zu gemacht. Hinten war es wie ihr beschrieben habt, wie in einer Sauna und vorne war es mir eindeutig zu kühl. Ich werde mich auch an die Optimierung machen. Nur wo fange ich an. Die Heizung sitzt unter dem linken Einzelbett, nur von wo aus komme ich da dran? Muss ich in der Heckgarage bei der Therme die Verkleidung abmachen oder in dem Staukasten unter dem Bett?
Meiner Meinung nach sitzt auch die Temperatursteuerung im Schlafbereich vollkommen falsch. Gehört die nicht in den Wohnbereich?

Kann mir jemand einen Tipp geben?

Hier mal der Grundriss
grün: Tempsteuerung
schwarz: irgendwo da sitzt die Heizung
rot: sehr warme Austrittsdüsen
orange: kommt noch einigermaßen warme Luft an
blau: kaum Luft und wenn nur kalt




Tins

Tins am 23 Feb 2015 11:43:29

mmmmh kann leider keine Bilder verlinken

JackSchmidt am 23 Feb 2015 13:09:57

Hallo Tins, zum 447 kann ich Dir keine eindeutige Hilfestellung geben.

Deswegen hier nur einige algemeine Tips.

Normalerweise musst Du nicht von der Garage ran.

Du solltest feststellen wo deine Heizungsleitungen verlaufen und es Dir zu besseren Übersicht aufmalen.

Wenn Du im Heckbereich eine Heizungsleitungen von einer Auslassdüse mit der Heizungsleitungen nach vorne verbinden kannst, ist das der erste Schritt. (wie das geht ist hier schon ausführlich beschrieben worden)

Dann solltest Du nach ein Platz für das Zusatzgebläses suchen. (in der Heizungsleitungen, halber Weg nach vorne, vor dem erste Auslass)

Der Fühler sollte über der Eingangstür sein. Wenn er hinten im Schlafzimmer ist, meldet er schnell zu warm und vorne bleibt es kallt.

Anzeige

  • Die neuesten 10 Themen
  •  
  • Die neuesten 10 Reiseberichte
  • Die neuesten 10 Stellplätze

Frostwächter beim XGO Family 106
Einbau einer Umwälzpumpe in die Alde-Heizung
Alle Rechte vorbehalten ©2003 - 2026 AGB - Datenschutzerklaerung - Kontakt