rump
anhaengerkupplung
hallo
Links zu ebay oder Amazon sind Werbelinks. Wenn Sie auf der Zielseite etwas kaufen, bekommen wir vom betreffenden Anbieter Provision. Es entstehen für Sie keine Nachteile beim Kauf oder Preis.

Erfahrungsberichte Hymer Exis


clebre am 09 Jan 2013 11:43:15

Hallo,

2 Tage vor Weihnachten ist unser neuer Hymer Exis i 504 (Basis Fiat Ducato + Alko-Rahmen) nach rd. 4 Monaten Lieferzeit endlich geliefert worden.

Ich möchte hier gern einen neuen Thread aufmachen, in dem die Besitzer, Interessenten und Geistesverwandte (Fahrer von Hymer B... - an raidy) sich rege austauschen über dieses Fahrzeug (diese Fahrzeugklasse).

Hier meine ersten Eindrücke nach rd. 1.200 km:

1. Motorisierung
Wir haben den 150 PS-Automatik. Aus meiner Sicht eine sehr gute Entscheidung: sparsam und komfortabel.
Der 130 PS-Motor wäre bei einem Schaltungsgetriebe sicher völlig ausreichen motorisiert.

2. Gewicht
Wir haben ja den kleinsten Exis mit rd. 6,20 m. Mit ihm wurde ja viel Reklame gemacht weil er nur 2.610 kg wiegt. In unserer Ausstattung mit Markise, Reserverad, Alu-Tankflaschen usw., aber ohne Fahrradträger und ohne Sat-Anlage wiegt er tatsächlich schon vollgetankt incl. Wasser etc. rd. 3.000 kg. Also noch genug Reserve. Aber die Warnung an alle Gewichtsfetischisten: Laßt euch nichts vormachen: auch bei diesem rel. kleinen Fahrzeug sind 3,5t schnell erreicht, wenn man den größeren Exis wählt. Wie mag es da dann erst bei anderen Fahrzeugen aussehen :roll: :roll: :roll:

3. Wertigkeit
Wir haben ja vorher einen neuen Dethleffs Globebus gefahren und waren mit dem sehr zufrieden. Aber wenn ich den Hymer sehe, so spielt er doch hinsichtlich der Wertigkeit in einer anderen Klasse (o.k. gibt noch eine Menge hochwertigerer Hersteller, aber unter 3,5t :?: ). Meine Aussage bezieht sich sowohl auf den liebevolleren Innenausbau (wie sind z.B. die Kabel verlegt, Spaltmaße) als auch die Qualität der Matratzen, der Sitzpolster usw.
Wenn also Hymer teuerer ist als z.B. Dethleffs ist das sicher gerechtfertigt.

4. Platzverhältnisse
Unser jetziges Fahrzeug ist rd. 80 cm kürzer als der Vorgänger. Dadurch ist die Heckgarage deutlich kleiner, aber ich bekomme alles hinein was ich benötige: 2 normale Fahrräder, 1 Reserverad, 3 Campingstühle, 1 größerer C.-Tisch usw. Im Innenraum sind für uns 2 Personen genügend Stauraum vorhanden. Für die Schuhe muss ich mir aber noch etwas einfallen lassen. Nachteilig ist, dass der Fahrersitz bei normal gestellter Rückenlehne nicht frei drehbar ist; er kollidiert mit dem Lenkrad.

Soviel von mir als erstem Eindruck. Wenn mir weiteres auffällt werde ich es ergänzen.

Nun freue ich mich auf Eure Erfahrungen mit kleinen Hymer.

Anzeige vom Forum

Hier findest Du vielleicht schon, was Du suchst: Artikel auf eBay oder versuchs hier bei Amazon

lolex am 09 Jan 2013 13:30:44

wir haben den 674 mit 130 ps .lieferung märz 2012 .
gewogen mit sat.anlage , markise , res.rad etc. 2960 kg.
uns reicht dies mit 2 personen vollkommen .

nach 5 reisen und 10000km kaum probleme ausser :

rückruf bodenplatte garage und neu lose schrauben fernsehhalterung . ( noch nicht behoben )
klebende fenstergummis mit silikonspray fast behoben wird aber noch beim service moniert.
schwergängige bezw. klemmende türöffnung innen an der fahrerseite.

werde dies alles beim dichheitstest im frühling beheben lassen .

tolles und wertiges fahrzeug .
verbrauch zwischen 10 und 11 lt / 100 km
ausreichende motorrisierung , leise etc.

würde ich jederzeit wieder kaufen .

lolex

pedaulm am 11 Mär 2013 20:49:42

clebre hat geschrieben:Hallo,

2 Tage vor Weihnachten ist unser neuer Hymer Exis i 504 (Basis Fiat Ducato + Alko-Rahmen) nach rd. 4 Monaten Lieferzeit endlich geliefert worden.

Ich möchte hier gern einen neuen Thread aufmachen, in dem die Besitzer, Interessenten und Geistesverwandte (Fahrer von Hymer B... - an raidy) sich rege austauschen über dieses Fahrzeug (diese Fahrzeugklasse).

Hier meine ersten Eindrücke nach rd. 1.200 km:

1. Motorisierung
Wir haben den 150 PS-Automatik. Aus meiner Sicht eine sehr gute Entscheidung: sparsam und komfortabel.
Der 130 PS-Motor wäre bei einem Schaltungsgetriebe sicher völlig ausreichen motorisiert.

2. Gewicht
Wir haben ja den kleinsten Exis mit rd. 6,20 m. Mit ihm wurde ja viel Reklame gemacht weil er nur 2.610 kg wiegt. In unserer Ausstattung mit Markise, Reserverad, Alu-Tankflaschen usw., aber ohne Fahrradträger und ohne Sat-Anlage wiegt er tatsächlich schon vollgetankt incl. Wasser etc. rd. 3.000 kg. Also noch genug Reserve. Aber die Warnung an alle Gewichtsfetischisten: Laßt euch nichts vormachen: auch bei diesem rel. kleinen Fahrzeug sind 3,5t schnell erreicht, wenn man den größeren Exis wählt. Wie mag es da dann erst bei anderen Fahrzeugen aussehen :roll: :roll: :roll:

3. Wertigkeit
Wir haben ja vorher einen neuen Dethleffs Globebus gefahren und waren mit dem sehr zufrieden. Aber wenn ich den Hymer sehe, so spielt er doch hinsichtlich der Wertigkeit in einer anderen Klasse (o.k. gibt noch eine Menge hochwertigerer Hersteller, aber unter 3,5t :?: ). Meine Aussage bezieht sich sowohl auf den liebevolleren Innenausbau (wie sind z.B. die Kabel verlegt, Spaltmaße) als auch die Qualität der Matratzen, der Sitzpolster usw.
Wenn also Hymer teuerer ist als z.B. Dethleffs ist das sicher gerechtfertigt.

4. Platzverhältnisse
Unser jetziges Fahrzeug ist rd. 80 cm kürzer als der Vorgänger. Dadurch ist die Heckgarage deutlich kleiner, aber ich bekomme alles hinein was ich benötige: 2 normale Fahrräder, 1 Reserverad, 3 Campingstühle, 1 größerer C.-Tisch usw. Im Innenraum sind für uns 2 Personen genügend Stauraum vorhanden. Für die Schuhe muss ich mir aber noch etwas einfallen lassen. Nachteilig ist, dass der Fahrersitz bei normal gestellter Rückenlehne nicht frei drehbar ist; er kollidiert mit dem Lenkrad.

Soviel von mir als erstem Eindruck. Wenn mir weiteres auffällt werde ich es ergänzen.

Nun freue ich mich auf Eure Erfahrungen mit kleinen Hymer.


Hallo clebre,
ich hoffe, Ihr konntet mittlerweile noch weitere (und hoffentlich gute) Erfahrungen mit "meinem" :-) (zukünftigen) Fahrzeug machen. Ein Update bei Gelegenheit zur Steigerung der Vorfreude (oder auch als Vorwarnung) wäre toll.
Liegt das Reserverad eigentlich tatsächlich lose in der Heckgarage (wie im Prospekt angegeben) herum oder kommt es doch mit einer Halterung?

Viele
Peter

Anzeige vom Forum


Gast am 11 Mär 2013 20:58:15

clebre hat geschrieben:Hallo,

2 Tage vor Weihnachten ist unser neuer Hymer Exis i 504 (Basis Fiat Ducato + Alko-Rahmen) nach rd. 4 Monaten Lieferzeit endlich geliefert worden.

Ich möchte hier gern einen neuen Thread aufmachen, in dem die Besitzer, Interessenten und Geistesverwandte (Fahrer von Hymer B... - an raidy) sich rege austauschen über dieses Fahrzeug (diese Fahrzeugklasse).

Hier meine ersten Eindrücke nach rd. 1.200 km:

1. Motorisierung
Wir haben den 150 PS-Automatik. Aus meiner Sicht eine sehr gute Entscheidung: sparsam und komfortabel.
Der 130 PS-Motor wäre bei einem Schaltungsgetriebe sicher völlig ausreichen motorisiert.

2. Gewicht
Wir haben ja den kleinsten Exis mit rd. 6,20 m. Mit ihm wurde ja viel Reklame gemacht weil er nur 2.610 kg wiegt. In unserer Ausstattung mit Markise, Reserverad, Alu-Tankflaschen usw., aber ohne Fahrradträger und ohne Sat-Anlage wiegt er tatsächlich schon vollgetankt incl. Wasser etc. rd. 3.000 kg. Also noch genug Reserve. Aber die Warnung an alle Gewichtsfetischisten: Laßt euch nichts vormachen: auch bei diesem rel. kleinen Fahrzeug sind 3,5t schnell erreicht, wenn man den größeren Exis wählt. Wie mag es da dann erst bei anderen Fahrzeugen aussehen :roll: :roll: :roll:

3. Wertigkeit
Wir haben ja vorher einen neuen Dethleffs Globebus gefahren und waren mit dem sehr zufrieden. Aber wenn ich den Hymer sehe, so spielt er doch hinsichtlich der Wertigkeit in einer anderen Klasse (o.k. gibt noch eine Menge hochwertigerer Hersteller, aber unter 3,5t :?: ). Meine Aussage bezieht sich sowohl auf den liebevolleren Innenausbau (wie sind z.B. die Kabel verlegt, Spaltmaße) als auch die Qualität der Matratzen, der Sitzpolster usw.
Wenn also Hymer teuerer ist als z.B. Dethleffs ist das sicher gerechtfertigt.

4. Platzverhältnisse
Unser jetziges Fahrzeug ist rd. 80 cm kürzer als der Vorgänger. Dadurch ist die Heckgarage deutlich kleiner, aber ich bekomme alles hinein was ich benötige: 2 normale Fahrräder, 1 Reserverad, 3 Campingstühle, 1 größerer C.-Tisch usw. Im Innenraum sind für uns 2 Personen genügend Stauraum vorhanden. Für die Schuhe muss ich mir aber noch etwas einfallen lassen. Nachteilig ist, dass der Fahrersitz bei normal gestellter Rückenlehne nicht frei drehbar ist; er kollidiert mit dem Lenkrad.

Soviel von mir als erstem Eindruck. Wenn mir weiteres auffällt werde ich es ergänzen.

Nun freue ich mich auf Eure Erfahrungen mit kleinen Hymer.


Betreffs der Schuhe......
--> Link

clebre am 11 Mär 2013 22:29:01

pedaulm hat geschrieben:
Hallo clebre,
ich hoffe, Ihr konntet mittlerweile noch weitere (und hoffentlich gute) Erfahrungen mit "meinem" :-) (zukünftigen) Fahrzeug machen. Ein Update bei Gelegenheit zur Steigerung der Vorfreude (oder auch als Vorwarnung) wäre toll.
Liegt das Reserverad eigentlich tatsächlich lose in der Heckgarage (wie im Prospekt angegeben) herum oder kommt es doch mit einer Halterung?

Viele
Peter


Hallo,
das Reserverad habe ich natürlich nicht bei Hymer mitbestellt sondern einfach 1 Rad vom Sommerreifen-Satz genommen und im Sommer mache ich es umgekehrt.

Den Reifen habe ich aufrecht hingestellt in der Mitte der Heckgarade. Dann 2 Keile gesägt und den Reifen damit fixiert. Angebunden an eine Querstange und das funktioniert ganz gut.

OK - wenn es etwas wärmer ist werde ich noch mal eine etwas professionellere Halterung basteln, aber das mit den Keilen geht schon gut. Und ein Foto werde ich auch noch einstellen, habe aber im Moment keine Zeit.

clebre am 11 Mär 2013 22:49:22

Hallo,

inzwischen waren wir wieder einmal in Berlin. Sonntag sind wir zurückgefahren. Die Autobahn war kompletter Schneematsch, etliche Fahrzeuge lagen im Graben.

Ich habe mich im Exis mit Automatik sehr wohl gefühlt; das Fahrverhalten bei sehr rutschiger Straße war sehr gut.

Mit der Heizung klappt es auch inzwischen; allerdings wechsele ich zwischen "HI" und 32° :evil: und das Finetuning mache ich durch die Lüfterdrehzahl. :oops:

Folgendes ist mir negativ aufgefallen:
Die Küchenschubläden sind - wie das ja heute so modern ist :cry: in 90cm breite ausgeführt. Sieht zwar super aus, ist aber völlig unpraktisch. Jedes Mal öffnet man so ein Riesenteil, welches natürlich auch eine Menge Platz beansprucht.

Das Womo hat jede Menge 230V-Steckdosen (die ich alle nicht brauche) und nur eine einzige 12V-Steckdose für die Aufbaubatterien! :explodieren: Da muss ich also noch gewaltig nachbessern.

Frischwassertank versteckt eingebaut; mit Bürste etc, nicht zu reinigen.

Sehr positiv ist:
komplette Ausstattung mit LED-Lampen; sehr sparsam im Gebrauch;

Alle Regale sind mit Gummistrippen zur Sicherung versehen - sehr praktisch.

Trittstufen zum Heckbett mit praktischen Ablagen darin.

Soviel für heute; demnächst kommen auch noch Fotos.

silo am 11 Mär 2013 23:42:23

Hallo Clebre,
Danke für die ausführliche Darstellung Deines neuen mobilen Heims.
Da ich auch schon genau diesen Typ fixiert hatte, würde mich sehr interessieren, wie Du 1 Rad, 2 Fahrräder, Tisch und Stühle in die Garage geschichtet hast.
Könntest Du ein Bild davon posten?
Danke schonmal

Gast am 11 Mär 2013 23:56:49

silo hat geschrieben:Hallo Clebre,
Danke für die ausführliche Darstellung Deines neuen mobilen Heims.
Da ich auch schon genau diesen Typ fixiert hatte, würde mich sehr interessieren, wie Du 1 Rad, 2 Fahrräder, Tisch und Stühle in die Garage geschichtet hast.
Könntest Du ein Bild davon posten?
Danke schonmal

Ich kenne jetzt den Größenunterschied der Heckgarage zwischen Exis 504 und B504 nicht, aber in meinem B504 bringe ich das locker unter. Und es hat immer noch genügend Platz für andere Dinge.
Da ich gerade keine Räder drin habe, kann ich dir kein Photo zeigen.

EDIT: dieses Bild habe ich gefunden

Das Reserverad ist auf der Erhöhung in der Mitte. Dort sind auch 3 Stühle, der Tisch, der Solarkoffer, der Werkzeugkoffer und das FIAT-Werkzeug samt Wagenheber.
Die gesamte Bodenplatte ist jetzt noch frei.

pedaulm am 12 Mär 2013 13:17:48

Vielen Dank clebre für die rasche und ausführliche Antwort!
clebre hat geschrieben:Ich habe mich im Exis mit Automatik sehr wohl gefühlt; das Fahrverhalten bei sehr rutschiger Straße war sehr gut.

Das freut mich sehr zu hören, da ich auch die Automatik bestellt habe.
clebre hat geschrieben:Mit der Heizung klappt es auch inzwischen; allerdings wechsele ich zwischen "HI" und 32° :evil: und das Finetuning mache ich durch die Lüfterdrehzahl. :oops:

OK, dann bin ich ja schon mal vorgewarnt. :?
clebre hat geschrieben:Folgendes ist mir negativ aufgefallen:
Die Küchenschubläden sind - wie das ja heute so modern ist :cry: in 90cm breite ausgeführt. Sieht zwar super aus, ist aber völlig unpraktisch. Jedes Mal öffnet man so ein Riesenteil, welches natürlich auch eine Menge Platz beansprucht.

OK, das heißt, ich muss mich dann nach einer vernünftigen Einteilung umsehen, damit da nicht alles durcheinanderfliegt. [Hier wäre ich über jeden guten Tipp aus dem Forum dankbar. :?: Selbst etwas basteln geht natürlich, da bin ich aber nicht unbedingt scharf darauf. ] - Ist die Schublade wenigstens stabil genug? Bei 90cm kommt ja potenziell ein ganz hübsches "Ladegewicht" zusammen.
clebre hat geschrieben:Das Womo hat jede Menge 230V-Steckdosen (die ich alle nicht brauche) und nur eine einzige 12V-Steckdose für die Aufbaubatterien! :explodieren: Da muss ich also noch gewaltig nachbessern.

Das ist natürlich nicht so toll. :( War mir auch schon aufgefallen und ich habe mir deshalb vorsorglich schon mal ein 12V-Verlängerungskabel sowie einen Dreifachverteiler mit USB-Anschluss gekauft (kosten zusammen weniger als 10 €). - Wenn sich das im Gebrauch als unpraktisch erweist, werde ich später evtl. dann zusätzliche 12V-Steckdosen nachrüsten. [Für Tipps aus dem Forum, an welchen Stellen man diese gut platzieren und mit wenig Aufwand anschließen kann, wäre ich dankbar. :?: ]
clebre hat geschrieben:Frischwassertank versteckt eingebaut; mit Bürste etc, nicht zu reinigen.

Das ist nicht so toll. :(
clebre hat geschrieben:Sehr positiv ist:
komplette Ausstattung mit LED-Lampen; sehr sparsam im Gebrauch;

Ist das die Standardausstattung oder habt Ihr das "Lichtpaket" (Sonderausstattung) installiert?
clebre hat geschrieben:Alle Regale sind mit Gummistrippen zur Sicherung versehen - sehr praktisch.
Trittstufen zum Heckbett mit praktischen Ablagen darin.
Soviel für heute; demnächst kommen auch noch Fotos.

Prima!

Viele
Peter

pedaulm am 12 Mär 2013 20:29:27

raidy hat geschrieben:Ich kenne jetzt den Größenunterschied der Heckgarage zwischen Exis 504 und B504 nicht, aber in meinem B504 bringe ich das locker unter. Und es hat immer noch genügend Platz für andere Dinge.
Da ich gerade keine Räder drin habe, kann ich dir kein Photo zeigen.

EDIT: dieses Bild habe ich gefunden

Das Reserverad ist auf der Erhöhung in der Mitte. Dort sind auch 3 Stühle, der Tisch, der Solarkoffer, der Werkzeugkoffer und das FIAT-Werkzeug samt Wagenheber.
Die gesamte Bodenplatte ist jetzt noch frei.


Ich habe mir das Ganze heute Nachmittag nochmals bei Hymer in Bad Waldsee angeschaut. Den "Sockel" und so ein Gestänge wie in dem Bild erkennbar, gibt es beim Exsis-i 504 nicht. Man hat eine glatte Wand und ob und unten eine Leiste, in der man die Zurrösen einhängen kann, und das war's. Aber vermutlich kann man da aus dem Zubehörkatalog von MoverA diesbezüglich einiges nachrüsten.

In Bezug auf das Ersatzrad habe ich von einem Verkäufer erfahren, dass es für den Exsis-i 504 eine Halterung hierfür gibt. :!: Möglicherweise ist das recht neu, denn die Serviceabteilung, die ich zuvor gefragt hatte, wusste diesbezüglich noch von nichts. - Mehr Infos habe ich im Moment leider auch nicht.

clebre am 12 Mär 2013 21:44:51

Hallo,

Hier noch einmal etwas präziser die Aussagen zur Heckgarage:
An der Rückwand 2 Campingstühle, 2 Campinghocker und 1 Tisch mit Spanngurten an den Zurrösen befestigt.
Das Reserverad steht in der Mitte an der Wand nach vorne.
2 grosse Tourenräder stehen angelehnt an das Reserverad auf dem Boden sind sind mit einem Spanngurt
am Oberrohr "angebunden". Haben wir immer schon so gemacht, hält problemlos.

Dann stehen noch eine Kabeltrommel und eine Giesskanne dort. Der Rest sind Schuhe und Kleinkram die sich in eingebauten Regalen (Hymer-Serienausstattung) befinden. Es fehlt noch der Wasserschlauch, das war's, mehr kommt auch nicht in die Heckgarage.

Also: Platz genug.

Gast am 12 Mär 2013 21:49:38

Ich habe mir heute 6 Airlineschienen a 1m, 20 Ösen und Kleber bestellt.
In Kürze baue ich die Heckgarage so um, dann man alles sehr komfortabel befestigen kann. Habe da so eine Idee im Kopf.
Ich stelle dann hier ein paar Photos rein.

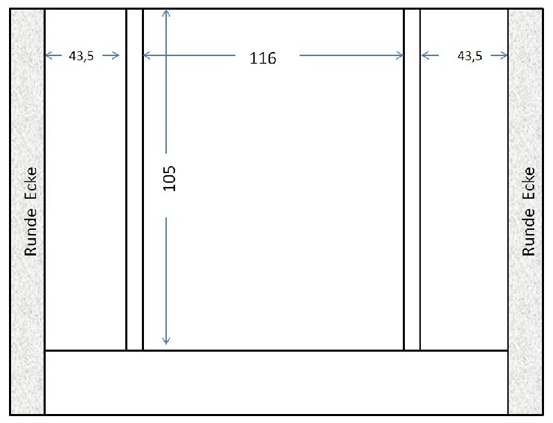
@ pedaulm: Die Rot markierten Schienen hatte ich selbst eingebaut.

Hier mal die groben Maße der hintern Heckwand ab da, wo keine Rundungen mehr sind: B504 NICHT Exis

Untere Podesthöhe ist (geschätzte) 15cm

pedaulm am 13 Mär 2013 12:05:55

raidy hat geschrieben:Ich habe mir heute 6 Airlineschienen a 1m, 20 Ösen und Kleber bestellt.
In Kürze baue ich die Heckgarage so um, dann man alles sehr komfortabel befestigen kann. Habe da so eine Idee im Kopf.
Ich stelle dann hier ein paar Photos rein.

@ pedaulm: Die Rot markierten Schienen hatte ich selbst eingebaut.

Hier mal die groben Maße der hintern Heckwand ab da, wo keine Rundungen mehr sind: B504 NICHT Exis

Untere Podesthöhe ist (geschätzte) 15cm


Vielen Dank für die ausführliche Beschreibung!

Viele
Peter

pedaulm am 01 Apr 2013 18:10:25

Hallo zusammen,
gibt es eigentlich mittlerweile weitere Erfahrungen mit dem Exsis-i 504? Über die eine oder andere Kinderkrankheit, wie z.B. klebende Fenster und schleifende Duschtüre wurde ja hier oder an anderen Stellen im Forum bereits berichtet. Da ich in vorauss. 4-6 Wochen mein Womo in Empfang nehmen werde, bin ich natürlich sehr daran interessiert zu erfahren, ob es weitere potenzielle, konstruktiv bedingte Mängel gibt :? , bei denen man bei der Übergabe prüfen sollte, ob sie inzwischen beseitigt worden sind. -- Weitere positive Erfahrungsberichte :razz: wären natürlich ebenfalls toll.
Sobald ich mein Fahrzeug übernommen habe, werde ich dann natürlich ebenfalls hier berichten.

Für Eure Mühe schon mal vielen Dank im Voraus!

clebre am 07 Apr 2013 20:32:38

Hallo,
wir sind jetzt von einem 14-tägigen Paris-Ausflug zurück (hier ein paar Anmerkungen)
--> Link
Hier einige weitere Erfahrungen mit dem Hymer Exis:

Heizung
Ich trauere ja immer noch meiner alten Alde-WW-Heizung und der Regelung nach.
Der Hymer hat ja eine Truma-Gebläseheizung. Die ist wesentlich lauter und vor allem nicht so gleichmässig.
Die Regelung mit dem Drehrädchen ist unbefriedigend, weil nicht genau genug (bei 2 sind es nur rd. 19°, bei Stufe 3 werden es 22°- so bin ich also immer am regeln).
Aber auch etwas positives: sie ist sehr sparsam (aber der Hymer ist wohl auch gut isoliert). ich habe in den 14 Tagen bei Temperaturen um Null ° nur rd 30 l Gas gebraucht.

Gerades Stehen
Der Platz auf dem CP in Paris am Bois de Boulogne war sehr gerade. Dabei ist mir aufgefallen, dass der Exis hinten deutlich höher steht. Wir mussten also auf einem waagerechten Platz vorne Keile unterlegen.

Gast am 07 Apr 2013 21:13:13

Hallo clebre,

hier ein paar "Gegenüberstellungen" Exis und B504

1) Truma Heizung:
Ja, der Regler ist ein Witz. Stellbereich zu klein und nicht feinfühlig regelbar. Das mit der Lautstärke kann ich allerdings nicht direkt bestätigen.
Nur wenn er Grundaufheizen muss, hört man das Gebläse deutlich, danach regelt es so weit runter, dass man es nicht mehr hören kann.
Allerdings liegt meine Heizung durch den Doppelboden auch recht tief unten. Wobei ich den Vergleich zu einer WW-Heizung nicht kenne.
Ich finde, dass sie doch beachtlich schnell aufheizt, was ja auch was hat.
Der Gasverbrauch liegt auch bei uns weit unter dem, was man sonst so hier liest. Sicher ein Vorteil der PUAL-Wand. Auch zeigt es, dass eine große Frontscheibe eben doch kein Killer ist, wenn man die Jalousie schließt.
2) Klebende Fenstergummis:
Hatte ich auch. Erst nach gründlichem reinigen und Eintalken wurde es gut. Wobei Glyzerin da noch besser sein soll.
3) Küchenschubläden
Haben bei mir Normalmaß, also nicht so breit.
4) 12V Steckdose
Gibt es im B504 gar keine im Aufbaubereich. Nur zwei Stück in der Fahrerkonsole, wobei beide nur MIR Zündung gehen.
Das finde ich ziemlich unverschämt und habe selbst Hand angelegt.
5) Im Lot stehen
Da habe ich Glück, der meine steht auf ebener Fläche auch eben.
6) Das Kunststoffproblem
Bisher hatte ich (von den defekten Banner AGMs) abgesehen nur Kleinigkeiten, darunter mehrfach abbrechende Kunststoffteile für 10 Cent.
Dann zwei mal die Duo/Twin-Pumpe, aber sonst toi toi toi.

Insgesamt bin ich sehr zufrieden und würde ihn wieder kaufen. Im Besonderen bin ich mit den Service von Rall in Sindelfingen sehr zufrieden. Höflich, kompetent, absolut Termintreu. Dafür lassen sie sich aber auch bezahlen, was ja o.k. ist.

Also wünsche ich dir und allen Exis und B-Klasse Fahrern lange Freude am WoMo.

Raidy

clebre am 08 Apr 2013 21:05:27

pedaulm hat geschrieben:Liegt das Reserverad eigentlich tatsächlich lose in der Heckgarage (wie im Prospekt angegeben) herum oder kommt es doch mit einer Halterung?

Da hast Du wohl etwas falsch verstanden. :)
Wir haben kein Reserverad mitbestellt. Da habe ich einfach 1 Rad vom Sommerreifensatz genommen (im Sommer natürlich umgekehrt). Wenn Du das Reserverad bei Hymer mitbestellt ist es mit einer Halterung sauber an der Wand in der Heckgarage montiert. Es kostet aber auch :D

Mein Reserverad habe ich mit zwei Spanngurten an der Wand zum Wohnraum befestigt und mit 2 Keilen gesichert. Hält tadellos; werde ich wohl auch so lassen.

Dann habe ich gesehen, dass der Link zum CP in Paris nicht funktioniert - hier ein neuer Versuch.
--> Link

pedaulm am 20 Apr 2013 15:26:58

Hallo Exis-i-Fahrer Modelljahr 2013,
wie sind Eure Erfahrungen bei Toilettennutzung für ein "großes Geschäft"? Ist serienmäßig eine funktionierende Toilettenentlüftung installiert oder gibt es nach entsprechender Benutzung jedes Mal Gasalarm im Fahrzeug? :oops:

dani4camper am 20 Apr 2013 20:54:32

Hallo clebre

Van 512 auf Ford Transit:
1. Fahrzeug:
Sehr gut zum fahren, im 2. Gang beschleunigen: Vibrationen auf Vorderachse (rasch Schalten in 3.en dann OK)
Reserverad ist unter dem Fahrzeug angebracht, plus Ersatzkit

2. Aufbau:
Sehr gute Verarbeitung = Hymer
Tethford Toillette mit SOG. Probleme mit Schalter für Vetilator. Schalter ist an Platte angebracht im Kasten. Die Platte löst sich und dann ist die Ventilation permanent eingeschaltet. Kann das wieder hochschieben, aber durch Vibrationen rutscht das ganze wieder runter...
Wurde auch schon bei meinem Womo Händler 'korrigiert', aber leider erfolglos (benutze trotzdem Chem)

Allzeit gute Fahrt
Dani

clebre am 20 Apr 2013 22:04:26

pedaulm hat geschrieben:Hallo Exis-i-Fahrer Modelljahr 2013,
wie sind Eure Erfahrungen bei Toilettennutzung für ein "großes Geschäft"? Ist serienmäßig eine funktionierende Toilettenentlüftung installiert oder gibt es nach entsprechender Benutzung jedes Mal Gasalarm im Fahrzeug? :oops:

Hallo,
Wir haben kein Geruchsproblem. Ich weiss auch nicht, was eine "funkionierende Toilettenentlüftung" sein soll.

Wenn Du da besonders empfindlich bist: SOG (haben wir aber nicht).
Zu SOG gibt es hier im Forum jede Menge Kommentare.

Gast am 20 Apr 2013 22:07:31

Die Toilette hat eine Art Sog, also einen Nachbau. Bei SOG schaltet sich dieser mit dem Schieber ein, bei meiner mittels eines Tasters. Ich vermute mal, dass man so das SOG-Patent umgehen konnte.
Bei mir funktioniert er recht gut, so lange die Kohlekassette nicht alt (<6 Monate) ist. Danach lässt die Wirkung aber schnell nach.

pedaulm am 21 Apr 2013 12:02:55

clebre hat geschrieben:Hallo,
... Ich weiss auch nicht, was eine "funkionierende Toilettenentlüftung" sein soll.

Lass mich mal mit einem Kinderspruch antworten: "Es sprach der Weise Salomon: 'Leise Fürze stinken nicht, aber die leisen, die aus den dunklen Tiefen entweichen, davor, Sohn, hüte Dich, denn die stinken fürchterlich.'" :lol:
clebre hat geschrieben:Wenn Du da besonders empfindlich bist: SOG (haben wir aber nicht).
Zu SOG gibt es hier im Forum jede Menge Kommentare.

Ja, zur SOG gibt es jede Menge Kommentare. Ich habe aber nirgends gefunden, was eigentlich in den neuen Exsis serienmäßig verbaut wird. - Danke aber für die rasche Antwort. Vielleicht reicht uns die serienmäßige Lösung ja auch. Auf Chemie möchten wir nach Möglichkeit verzichten, das wäre allenfalls ein Übergangslösung.

pedaulm am 21 Apr 2013 12:05:47

raidy hat geschrieben:Die Toilette hat eine Art Sog, also einen Nachbau. Bei SOG schaltet sich dieser mit dem Schieber ein, bei meiner mittels eines Tasters. Ich vermute mal, dass man so das SOG-Patent umgehen konnte.
Bei mir funktioniert er recht gut, so lange die Kohlekassette nicht alt (<6 Monate) ist. Danach lässt die Wirkung aber schnell nach.

OK, danke für den Hinweis. Gibt es diese Kohlekassetten eigentlich in jedem gut sortierten Camping-Shop zum Mitnehmen oder muss man diese in der Regel gezielt bestellen?

Gast am 21 Apr 2013 13:05:45

pedaulm hat geschrieben:
raidy hat geschrieben:Die Toilette hat eine Art Sog, also einen Nachbau. Bei SOG schaltet sich dieser mit dem Schieber ein, bei meiner mittels eines Tasters. Ich vermute mal, dass man so das SOG-Patent umgehen konnte.
Bei mir funktioniert er recht gut, so lange die Kohlekassette nicht alt (<6 Monate) ist. Danach lässt die Wirkung aber schnell nach.

OK, danke für den Hinweis. Gibt es diese Kohlekassetten eigentlich in jedem gut sortierten Camping-Shop zum Mitnehmen oder muss man diese in der Regel gezielt bestellen?

Es gibt sie in jedem gut sortierten Campingshop.
Tipp für Sparsame: Ihr könnt die alte Aktivkohle raus machen und durch Aktivkohle vom Aquarienshop ersetzen. Dann kostet eine Neufüllung 50Cent statt 8€.

pedaulm am 21 Apr 2013 13:39:02

pedaulm hat geschrieben:
clebre hat geschrieben:Hallo,
... Ich weiss auch nicht, was eine "funkionierende Toilettenentlüftung" sein soll.

Lass mich mal mit einem Kinderspruch antworten: "Es sprach der Weise Salomon: 'Leise Fürze stinken nicht, aber die leisen, die aus den dunklen Tiefen entweichen, davor, Sohn, hüte Dich, denn die stinken fürchterlich.'" :lol:
clebre hat geschrieben:Wenn Du da besonders empfindlich bist: SOG (haben wir aber nicht).
Zu SOG gibt es hier im Forum jede Menge Kommentare.

Ja, zur SOG gibt es jede Menge Kommentare. Ich habe aber nirgends gefunden, was eigentlich in den neuen Exsis serienmäßig verbaut wird. - Danke aber für die rasche Antwort. Vielleicht reicht uns die serienmäßige Lösung ja auch. Auf Chemie möchten wir nach Möglichkeit verzichten, das wäre allenfalls ein Übergangslösung.

Muss oben natürlich heißen: "Laute Fürze stinken nicht, ..."

anka01 am 20 Mai 2013 13:07:24

Ein Hallo an alle Exsis i 504-Besitzer!

Wer hat schon mal den Füllstand des Frischwassertankes getestet? Bei mir leuchtet bereits bei 65l Befüllung die Anzeige 100% auf.

Beste aus Bayern!
Hans

Gast am 20 Mai 2013 14:06:53

Unsere Füllstandssensoren "spinnen" auch manchmal, wenn man ein Stück gefahren ist, ist wieder alles in Ordnung. ( Hymer B 514 Besitzer )

clebre am 20 Mai 2013 17:45:21

Ich habe auch den Eindruck, die Anzeige reagiert -vorsichtig formuliert "etwas grob".
:D
Das war bei unserem Vorgänger Dethleffs auch nicht anders.

Scheint aber ein grunsätzliches, fabrikatunabhängiges Problem zu sein.
Deshalb kommen ja manche Kollegen auf merkwürdige Gedanken (Wasserverbrauchsuhr) :D

pedaulm am 23 Mai 2013 18:37:56

clebre hat geschrieben:Folgendes ist mir negativ aufgefallen:
Die Küchenschubläden sind - wie das ja heute so modern ist :cry: in 90cm breite ausgeführt. Sieht zwar super aus, ist aber völlig unpraktisch. Jedes Mal öffnet man so ein Riesenteil, welches natürlich auch eine Menge Platz beansprucht.

Hat schon jemand geeignete Einsätze oder ähnliches entdeckt, mit denen man diese breiten Küchenschubladen flexibel unterteilen kann? (Natürlich kann man auch selbst etwas basteln, da bin ich aber nicht wirklich scharf darauf.)

Trollo am 23 Mai 2013 19:57:31

Moin,

also mein Exsis I504 Bj. 2013 hat verstellbare Unterteilungen (Holzteile).


Michael

dramme73 am 23 Mai 2013 20:26:42

Hallo,

hast Du schon mal hier: Link zum eBay Artikel
geschaut; ich war sehr zufrieden.

Olli

dramme73 am 23 Mai 2013 20:30:24

Entschuldigung;
Ich glaube jetzt funktioniert der Link zum eBay Artikel

erst richtig.

clebre am 23 Mai 2013 21:06:11

pedaulm hat geschrieben:
clebre hat geschrieben:Folgendes ist mir negativ aufgefallen:
Die Küchenschubläden sind - wie das ja heute so modern ist :cry: in 90cm breite ausgeführt. Sieht zwar super aus, ist aber völlig unpraktisch. Jedes Mal öffnet man so ein Riesenteil, welches natürlich auch eine Menge Platz beansprucht.

Hat schon jemand geeignete Einsätze oder ähnliches entdeckt, mit denen man diese breiten Küchenschubladen flexibel unterteilen kann? (Natürlich kann man auch selbst etwas basteln, da bin ich aber nicht wirklich scharf darauf.)

Ich vermute einmal, Dir geht es nicht um die Besteckschublade. Da ist ja beim Exis ein gut zu gebrauchender Einsatz drin.

Dir geht es sicher um die beiden riesengroßen Schubladen.

Bei mir waren auch einige Unterteilungen mit Brettern werksseitig eingebaut. Die haben mir überhaupt nicht gefallen; sie störten bei mir mehr als das sie nützen. Ich habe sie gleich entfernt.

Statt dessen habe ich meinem Hobby gefrönt und mich ans Basteln gemacht.

Hier seht ihr die Ansicht von oben:
Die Schublade ist werksseitig in 2 Hälften aufgeteilt. Ich habe die rechte Hälfte rundum mit ausgeschnittenen Brettchen versehen. Rechts die roten Apothekentöpfchen sind Gewürze etc, dann habe ich 7 blaue und 1 gelbe Tupperdose (in 2 unterschiedlichen Höhen) eingebaut für Tee, Honig, Salz und Paniermehl usw. Den Rest kann man glaube ich erkennen.

Das Ganze hat sich auf mehreren Fahrten bereits sehr bewährt. Es findet sich alles auf Anhieb wieder. Von Oben gesehen sieht das alles ziemlich wild aus, aber in Natura macht es einen ordentlichen Eindruck.

Sorry, habe in der Vorschau gesehen, es wurde wieder der rechte Rand abgeschnitten :evil: aber man kann auch so erkennen worum es geht.

Gast am 22 Jun 2013 20:18:47

haben uns heute mal einen Exis angeschaut, ich war erstaunt, die Matratzen liegen garnicht auf einem Lattenrost oder Frolisystem sondern man liegt auf einer Sperrholzplatte. Die riesigen Schieber in der Küche, und dort wo auf dem Bild 2 Threads weiter oben der Papierkorb ist war der Fernseher und der wird dann immer hoch geschoben, das Auto sollte 80000€ kosten.:gruebel:

clebre am 24 Jul 2013 13:19:59

fricki hat geschrieben:...die Matratzen liegen garnicht auf einem Lattenrost oder Frolisystem sondern man liegt auf einer Sperrholzplatte.


In unserem Exis-I sind beide Betten auf Lattenrosten!

fricki hat geschrieben:...Die riesigen Schieber in der Küche, und dort wo auf dem Bild 2 Threads weiter oben der Papierkorb ist war der Fernseher und der wird dann immer hoch geschoben, das Auto sollte 80000€ kosten.:gruebel:


Bei dem Preis hast Du aber für rd. 30.000 € Extras mit geordert.

Ich will ja Hymer gar nicht verteidigen. Aber ich denke, sie sind auch deshalb Marktführer weil sie ein gutes Preis-/Leistungsverhältnis haben.

Ich hatte vorher einen Dethleffs Globe4. Der war so ca. 10 % billiger, aber die Stellen wo der Unterschied spürbar wird kann ich dir alle zeigen.

clebre am 24 Jul 2013 13:32:01

Wir sind jetzt zum ersten mal bei richtig heißem Wetter unterwegs gewesen.

Die Aufbau-Isolierung die ja schon im Winter sich als hochwertig herausgestellt hat, hat sich auch bei heißen Temperaturen bewährt.

Das Schlafklima im Hubbett war trotz fehlender direkter Belüftungsmöglichkeit unproblematisch. Wir hatten das Fenster über dem Tisch offen und die Dachhaube. Diese Belüftung hat völlig ausgereicht.

Im hinteren Bett stört schon die Mini-Dachluke.

Nachteilig empfinde ich auch, dass man die große Haube in der Wagenmitte nur so etwa eine Handbreit hochkurbeln kann. Wird vermutlich aus Sicherheitsgründen so gemacht worden sein. Ich habe es aber lieber, wenn man das Ding richtig aufklappen kann. Das wäre auch gut für das reinigen des Daches ohne Leiter.

Aber ich befürchte, dass kann man ohne großen Aufwand nicht ändern :cry:

brainless am 25 Jul 2013 19:28:04

Ich will ja Hymer gar nicht verteidigen. Aber ich denke, sie sind auch deshalb Marktführer weil sie ein gutes Preis-/Leistungsverhältnis haben.

Ich hatte vorher einen Dethleffs Globe4. Der war so ca. 10 % billiger, aber die Stellen wo der Unterschied spürbar wird kann ich dir alle zeigen.



Hi clebre,

Du weißt aber schon, daß auch Dethleffs zu Hymer gehört?


Volker :wink:

brainless am 25 Jul 2013 19:32:23

Sorry, Doppelpost,


Volker :wink:

clebre am 26 Jul 2013 14:28:16

Klar weiß ich das :D

deshalb wohl auch die abgestufte Preisstrategie: Hymer im etwas höheren Preissegment angesiedelt (in der Autosprache würde ich sagen: Mercedes C oder E Klasse; Audi A4 oder A6 usw)

während Dethleffs eher die VW-Klasse (Golf etc) bedienen soll.

Ich weiß - der Vergleich hinkt :? aber ich denke so ganz abwegig ist das nicht.

Anzeige

  • Die neuesten 10 Themen
  •  
  • Die neuesten 10 Reiseberichte
  • Die neuesten 10 Stellplätze

Womo versichern?!
Generelles LKW Überholverbot in den Ferien
Alle Rechte vorbehalten ©2003 - 2026 AGB - Datenschutzerklaerung - Kontakt