rump
anhaengerkupplung
hallo
Links zu ebay oder Amazon sind Werbelinks. Wenn Sie auf der Zielseite etwas kaufen, bekommen wir vom betreffenden Anbieter Provision. Es entstehen für Sie keine Nachteile beim Kauf oder Preis.

Woelcke Autark Runner 4x4 316 CDI 1, 2, 3


Kgruber am 26 Feb 2015 14:35:52

vor 10 Monaten haben wir unser unser neues Wohnmobil bestellt, nun hat vor 8 Wochen endlich die Bauphase begonnnen. Als Ausbauer haben wir Woelcke
gewählt - der Autark Runner gefiel uns einfach am besten, außerdem können wir hier alle Wünsche umsetzen und das sind nicht wenige:
Allrad, Motorradbühne, kein Gas an Bord, Heckgarage, Sitzgruppe im Heck mit Umbau, aufklappbares Heckteil, Solar etc. und Zulassung mit 3,5 to.
In ca. 5 Wochen soll "er" nun fertig sein. Hier das erste Bild vom (noch nicht fertigen) Innenausbau - alles in weiss mit blauem Umleimer.
Wir planen schon die Jungfernfahrt über Ostern, hoffentlich klappts.


Anzeige vom Forum

Hier findest Du vielleicht schon, was Du suchst: Artikel auf eBay oder versuchs hier bei Amazon

wolkenhimmel am 26 Feb 2015 14:42:46

Die Daumen für Ostern sind gedrückt!

Wohnt Ihr in der Nähe und habt die Möglichkeit ab und zu den Baufortschritt zu verfolgen? Von uns aus nach Heimsheim sind es knapp 650km, da werden wir wohl nicht zu häufig runterfahren können. Und das bei meiner Neugier...

Welche Farbe bekommen die Polster? Ich weiß, typische Frauenfrage... :oops:

VG Harriet

Gogolo am 26 Feb 2015 15:50:18

Kgruber hat geschrieben:Allrad, Motorradbühne, kein Gas an Bord, Heckgarage, Sitzgruppe im Heck mit Umbau, aufklappbares Heckteil, Solar etc. und Zulassung mit 3,5 to.



Boah, ey, und damit bleibt ihr noch unter 3,5to? Respekt, wenn es klappt! Wie hoch ist denn dann noch die Zuladung bzw. die Tankinhalte von Frisch- und Abwasser?


Habe die Ehre

Gogolo

Anzeige vom Forum


chrisc4 am 26 Feb 2015 16:33:27

Hallo!
Ich wundere mich auch, Allrad, unter 3,5 to, mit Garage und Motorradbühne.
Wie ist das Leergewicht nach dem kompletten Ausbau?
Wie viele Personen sollen mitfahren?
Wie schwer ist denn das Motorrad?
Wie ist denn die max. zulässige Achslast hinten?

Da wird es sehr eng werden. Wenn du die Daten bereits kennst, dann kannst Du die hier mal eingeben. --> Link


Hans

Altmaerker39638 am 26 Feb 2015 17:23:34

Da komme ich aber ins grübeln. Lt. Prospekt hat das Fhrz. 3.120 kg Leergewicht. Dazu 2 Personen + 2 Gasflaschen + Wassertank 146 Ltr + Dieseltank voll ...
Was kann man da noch mitnehmen ??? Fragen über Fragen.

Gast am 26 Feb 2015 17:35:14

--> Link

Ich denke, mit einer entsprechenden Auflastung sollte es klappen.
Mit 3,5 t zGG wird es arg eng fürchte ich.
Sehr schönes Reisemobil ! :ja:

Asterixwelt am 26 Feb 2015 17:53:16

Hallo,

Ihr schreibt "kein Gas an Bord" ??? (z.B. Heizung)




Michael

Kgruber am 26 Feb 2015 18:13:03

Hallo Michael,

stimmt. Die Heizung/Warmwasser ist die Truma Dieselheizung, gekocht wird mit dem Ceranfeld Dieselcooker von Webasto. Dadurch sparen wir uns das lästige Flaschenwechseln, Platz und ca. 25 kg.
Solange noch Diesel im Tank ist, ist alles ok...

chrisc4 am 26 Feb 2015 18:15:53

Leider ist nicht jedes Fahrwerk Auflastbar, muss man klären. Bei einem Motorradträger geht es dann hauptsächlich um die Hinterachslast. Die Vorderachse wird entlastet, durch die Hebelwirkung. Das kann auch Probleme geben.
Da nützt meistens papiermäßiges Auflasten auf 3,8 to nix, weil die sich meist nur auf die Vorderachse auswirkt, von z.B. 1,5 to auf 1,8 to. Bei der Hinterachse bleibt es dann meistens bei 2,0 to und das ist deutlich zu wenig.
Motorradbühne mit Rahmenverstärkung ca. 50 KG. plus Motorrad ?? Das wird dann nix.
Ich würde den Verkäufer unbedingt auf diese Problematik ansprechen.


Hans

Kgruber am 26 Feb 2015 18:24:39

Die Polster sind Alcantara dunkelblau. Da sich Alcantara für die Vordersitze nicht bewährt hat, haben dir diese mit Leder bicolor
schwarz-dunkelblau beziehen lassen.
Von Woelcke sind wir 225 km weg, da kann man schon 2 -3 mal hinfahren während der Bauphase.

Stadtmaus hat geschrieben:Die Daumen für Ostern sind gedrückt!

Wohnt Ihr in der Nähe und habt die Möglichkeit ab und zu den Baufortschritt zu verfolgen? Von uns aus nach Heimsheim sind es knapp 650km, da werden wir wohl nicht zu häufig runterfahren können. Und das bei meiner Neugier...

Welche Farbe bekommen die Polster? Ich weiß, typische Frauenfrage... :oops:

VG Harriet

Kgruber am 26 Feb 2015 18:37:53

Generel zum Gewicht (für alle Nachfrager):
Dass es schwierig wird, war uns klar. Das Fahrzeug hätte 3.150 kg mit Fahrer, Diesel und Wasser (Frischwassertank hat 70l). Wir sparen noch 25 kg ein durch die LiFePO Batterie und nochmal 25 kg durch den Webasto Dieselcooker statt Gasflaschen. Damit haben wir mit Beifahrer, KTM und Motorradbühne rund 3.350. Also 250 kg Zuladung, da 100 kg darüber nirgendwo ein Problem sind. Sicherheitstechnische kein Problem, da auflastbar auf 3,8 to ohne dass ein Schräubchen verändert wird (das Gutachten haben wir, aber wir wollen nicht auflasten).
Vorderachse 1,8 to, Hinterachse 2,25 to (also auch hier keinerlei Gewichtsprobleme) - hinten statt normaler Federung die Airsuspension Semi Luftfederung.
Insgesamt allemal extrem knapp gerechnet, aber es sollte funktionieren - zumindest drück ich mir selbst die Daumen.
an alle!

Kgruber am 26 Feb 2015 18:55:06

P.S.: Last an der Hinterachse wegen Motorradbühne: das WoMo ist nur 5,95 lang, insofern ist auch der Überhang sehr gering. Speziell die Träger von Weih werden auch ganz nah an derRückwand befestigt, dadurch wird das Fahrzeug insgesamt nur 55 cm länger.

palstek am 26 Feb 2015 18:57:27

Kgruber hat geschrieben: Also 250 kg Zuladung, da 100 kg darüber nirgendwo ein Problem sind.


Oh, oh, großer Irrtum. In der Schweiz z.B. null Kilo Toleranz. Und überall musst du ausladen. Wenn du mehr Übergewicht als Wasser zum Ablassen hast, darfst du dir überlegen, von was du dich trennen willst.


Frank

Mondmann am 26 Feb 2015 19:03:17

Kgruber hat geschrieben:Generel zum Gewicht (für alle Nachfrager):
Dass es schwierig wird, war uns klar. da 100 kg darüber nirgendwo ein Problem sind. Sicherheitstechnische kein Problem,


an alle!



Hallo,

vielleicht versicherungstechnisch ein Problem....?

Liebe

Mondmann

Kgruber am 26 Feb 2015 19:20:23

Versicherung hat bestätigt, bis 3% darüber kein Problem. Schweiz: meine Frau fährt weiter, ich mit der KTM und schon ist das WoMo 200 kg leichter,
ohne abzulassen oder auszuladen!

Mondmann am 26 Feb 2015 19:22:25

Hallo,

hab da gerade eine Tabelle gefunden

--> Link bei Überladung.

Irgendwie funkt mein link nicht.
bei rentmobil.de Wohnmobile-Wohnwagen gibt es eine Tabelle "Regelsatz bei Überladung in Europa."

Liebe

Mondmann

Mondmann am 26 Feb 2015 19:36:10

Hallo,

leider funkt der link nicht, also nochmals

--> Link

dann weiter zu Tipps für Mieter

Regelsatz für Überladung in Europa.

Liebe

Mondmann

Mondmann am 26 Feb 2015 19:41:20

Kgruber hat geschrieben:Versicherung hat bestätigt, bis 3% darüber kein Problem. Schweiz: meine Frau fährt weiter, ich mit der KTM und schon ist das WoMo 200 kg leichter,
ohne abzulassen oder auszuladen!

Hallo,

ich will wahrlich keine Versicherungsdiskussion, aber bei einem Unfall mit Verletzten, entscheiden Sachverständige, Richter...
übrigens, hast Du das schriftlich von Deiner Versicherung?

Liebe

Mondmann

DigiMik am 26 Feb 2015 19:56:45

Moinsen,

nun, die magischen 3,5 T sind ja eine Philosophiefrage unter WoMo-Fahrern, jeder wie er mag...

Die Sache mit dem Motorad kannst Du m.E. schlicht knicken!
Ich melde mich mal zu Wort, da ich mich gerade mit einer Motorradbühne beschäftige.
Mal ausgehend von ein paar Daten, nur oberschlägig geschätzt.
Radstand dürften 3,66 sein, gehen wir mal wohlwollend davon aus, dass der Überhang inkl. Träger NUR 1,5m beträgt. Ich schätze mal eine Achslast (leer) von 2.000 kg.
Dann dürfte Träger und Moped gerade mal 177 kg wiegen!
Dann hast Du noch kein Handtuch oder ne Kiste Bier eingepackt! :D

Anders herum gerechnet:
Ausgehend von meinem Fahrzeug, müsstest Du inkl. Träger sogar einen Überhang von mind. 2m haben, dann packst Du da ne leichte KTM mit 150 kg drauf, dazu den Träger mit 20kg (Fiedler).
Dies bedeutet eine zusätzliche Last auf der Hinterachse von 266 kg!

Dann fahre mal über eine Delle oder Schlagloch, dann werden da locker mal 400 kg und mehr draus bei gleichzeitiger Entlastung der Vorderachse. Dann prost Mahlzeit Fahrwerk...

Ist nur meine Meinung:
Derjenige, der Dir sowas an Dein Fahrzeug baut, gehört für mich schlicht verprügelt! Das dürfte nie und nimmer ein TÜV abnehmen!

LG Mikesch

Gast am 26 Feb 2015 20:44:22

Kgruber hat geschrieben: Also 250 kg Zuladung, da 100 kg darüber nirgendwo ein Problem sind.

palstek hat geschrieben:Oh, oh, großer Irrtum. In der Schweiz z.B. null Kilo Toleranz.

Das stimmt nicht ganz. Es werden 3% Wiegetoleranz abgezogen:
wenn 3600 kg gewogen werden, dann zieht man 108 kg ab, es verbleiben also 3492 kg.

Art. 15 Messkorrektur bei Brücken- und Achslastwaagen
Der Sicherheitsabzug beträgt bei Messungen mit Brücken- und Achslastwaagen 3 Prozent
der ermittelten Achslast oder des ermittelten Betriebsgewichtes.
--> Link

Gogolo am 26 Feb 2015 22:11:55

Warum lastest du nicht einfach auf? Einen Mercedes Sprinter I (904.6) kannst du bis auf knapp 5 to auflasten. Dann hast du keine Probleme mehr und hast im Gelände auch noch Reserven, bevor die Karre in den Federn durchschlägt.

Mein Allrad-Gogolobil habe ich bewusst mit 5,5to zGg genommen. Leergewicht (vollbeladen mit 170l Wasser, Diesel, Verpflegung, Kleidung, Generator, Gas, Campinggeraffel und schweres Bergegerät sowie zwei Passagieren ist 4,2to. Da habe ich noch wirklich Luft (1,3to) für unebenes Gelände.


Habe die Ehre

Gogolo

Pooh335 am 26 Feb 2015 22:24:35

Ich tippe mal der Führerschein reicht nicht aus!

chrisc4 am 26 Feb 2015 22:32:47

Ich vermute, er möchte schneller als 100 km/h fahren, sonst wäre auch ein schicker Anhänger eine Alternative.
Anhängerkupplung + Stützlast =ca. 70Kg + Hebelwirkung = zusätzliche Hinterachslast.

rossifumi am 26 Feb 2015 22:40:31

Kgruber hat geschrieben:Wir sparen noch 25 kg ein durch die LiFePO Batterie

ich vermute der Aufbauakku ist damit gemeint?
Nochmal rund 15kg spart LiFepo als Starterakku.

Rossi

Alter Hans am 26 Feb 2015 23:56:00

Die 3% Toleranz sind dafür da, evtle. Wiegeungenauigkeiten zu berücksichtigen.
Wenn ihr nun eine Waage erwischt, die 2,5 %zu viel anzeigt, dann ist eure Toleranz fast verbraucht.
Man sollte die Toleranz nicht von vornherein als Lastreserve einrechnen.

Natürlich könnt ihr auch ne Waage erwischen die wenige % zu wenig anzeigt. Dann habt ihr Glück gehabt.

Gast am 27 Feb 2015 00:11:31

Alter Hans hat geschrieben:Wenn ihr nun eine Waage erwischt, die 2,5 %zu viel anzeigt, dann ist eure Toleranz fast verbraucht.

:evil: Solche lausigen Waagen gibt's in der Schweiz nicht! :D

Hans, Du hast schon recht! Aber wer fährt in der 3,5 to-Klasse schon mit "Untergewicht" herum? :lach:

garagenspanner am 27 Feb 2015 00:22:23

tztz2000 hat geschrieben: Du hast schon recht! Aber wer fährt in der 3,5 to-Klasse schon mit "Untergewicht" herum? :lach:



Ich :D



Jan

Laguna Seca am 27 Feb 2015 01:24:29

Glückwunsch zu dem schönen Fahrzeug.
Diese nervige Gewichtsdebatte der Besserwisser ödet mich an.
LS

DigiMik am 27 Feb 2015 01:27:21

chrisc4 hat geschrieben:Ich vermute, er möchte schneller als 100 km/h fahren

:lol:
Am Besten noch mit dem Moped hinten drauf... :D

Ich persönlich kann es irgendwie nicht verstehen. Da wird mit ach und krach am Gewicht gespart, nur um ein paar Kilo einzusparen um die 3,5 T Grenze nicht zu knacken, gleichzeitig aber so ein Überstück geplant.

LG vom Mikesch

wolfworldwide am 27 Feb 2015 08:14:33

Das ist auch nicht zu verstehen. Da lässt sich jemand ein 1a-Manufaktur Wohnmobil bauen und plant als Nutzlast ein gutgefaltetes Taschentuch ein. Unfassbar.

Mit besten n

Wolf

Kgruber am 27 Feb 2015 09:24:12

Pooh335 hat geschrieben:Ich tippe mal der Führerschein reicht nicht aus!


hat damit nichts zu tun, ich habe noch den alten 3er für 7,5 to + Hänger...

Kgruber am 27 Feb 2015 09:28:06

Laguna Seca hat geschrieben:Glückwunsch zu dem schönen Fahrzeug.
Diese nervige Gewichtsdebatte der Besserwisser ödet mich an.
LS


Danke, LS !
Ich wollte nie eine Gewichsdebatte lostreten, sondern nur unser neues WoMo darstellen. Ich werde mich gleich nochmal zu den 3,5 to zu Wort melden, dann solls das aber gewesen sein.

Gast am 27 Feb 2015 09:30:50

Nun kommt mal wieder runter! :)

Wer sich so ein Fahrzeug bauen lässt, weiss i.d.R. was und warum er es tut.

Mal abgesehen vom verwaltungstechnischen Aspekt eines möglichen Übergewichts steht für mich immer die tatsächliche Sicherheit auf der Strasse im Vordergrund. Und den Sprinter kann ich durch verstärkte Achsen und Dämpfer (der 4x4 hat das soweit ich weiss serienmässig) auf ein technisches Niveau bringen, dass man sich wegen 100 oder 200 kg Überladung keine Sorgen machen muss. Achsen, Bremsen usw sind mehr als ausreichend dimensioniert, man ist quasi mit einem abgelasteten 5 Tonner unterwegs.

tober am 27 Feb 2015 09:37:19

Das es knapp wird wissen wir ja nun 8) Es hilft wirklich nur das man so genau wie möglich die Achslast der Hinterachse berechnet. Auch mit dem gerödel welches in die Garage kommt.






Kgruber hat geschrieben: Schweiz: meine Frau fährt weiter, ich mit der KTM und schon ist das WoMo 200 kg leichter,
ohne abzulassen oder auszuladen!


Das ist jetzt OT und meiner "Murphys Law" seite entsprungen. Auf ner Autobahnraststätte die KTM von der Bühne geholt und dann wird man gefragt wo die Vignette ist :lach: :lach: :lach: :lach: :lach:

Gast am 27 Feb 2015 10:00:01

tztz2000 hat geschrieben:...man ist quasi mit einem abgelasteten 5 Tonner unterwegs.


Jetzt sind wir hier wohl in der Märchenstunde angekommen? :)

Das Fahrwerk vom 3,8 t Sprinter hat andere Bauteile
als der Sprinter mit 5 t und Zwillingsrädern auf der HA.

Bremsen, Stoßdämpfer, Federn, Rahmem usw. sind mit dem 3,8 t Sprinter keinesfalls identisch.
Dazu kommt, dass MB serienmäßig Reifen mit Unterkante Traglast montiert.

Schönreden/schreiben wird da nicht weiterhelfen.

Oder doch. :D :D :D

vg gerald

DigiMik am 27 Feb 2015 10:04:23

Kgruber hat geschrieben:Ich wollte nie eine Gewichsdebatte lostreten, sondern nur unser neues WoMo darstellen.


Ich vergaß zu sagen: "Herzlichen Glückwunsch" ob des schnuckeligen Teils!!!

Na ja, das mit dem Gewicht ist vorprogrammiert wegen dem Moped :)
Lass es von einem Fachmann ausrechnen, Du entscheidest, gut is...
Mich persönlich würde nur mal interessieren, ob das durchgeht...

Was für ne KTM soll drauf? Ne Duke? Zum Fahzeug passt dann die wilde Hornisse 690 R :D

LG vom Mikesch

wolkenhimmel am 27 Feb 2015 10:14:01

DigiMik hat geschrieben:Zum Fahzeug passt dann die wilde Hornisse 690 R :D


Hach, die liebe ich auch, oder die Supermoto... 8)

Kgruber am 27 Feb 2015 11:15:28

Die Felgen und Reifen sind jetzt auch drauf, leider ist das Bild nicht besonders:
4x LM-Kompletträder ORC Typ 125 8,5x18et50 schwarz mit Bereifung 255-60R18 112T AT von General (Conti-Ableger)


Gast am 27 Feb 2015 11:38:27

Kgruber hat geschrieben:Die Felgen und Reifen sind jetzt auch drauf, leider ist das Bild nicht besonders:
4x LM-Kompletträder ORC Typ 125 8,5x18et50 schwarz mit Bereifung 255-60R18 112T AT von General (Conti-Ableger)


Glückwunsch zum neuen Fahrzeug :top:
wird bestimmt ein hinkucker mit der Reifenkombination, was für eine Wandstärke hat er Aufbau und wie groß sind deine Tanks dimensioniert? Hast du zu dem Fahrgestell evtl. einen Link, wenn das wie du geschrieben hast auch mit 3,85to geht dann könnte das bei Zeiten für mich auch interessant werden.

Gast am 27 Feb 2015 11:44:53

Reifen mit einer Traglast von 112????????????????

Ich wünsche Euch wirklich viel Spaß mit dem neuen Mobil, verstehe allerdings nicht warum man mit
Gewalt auf 3,5 Tonnen will.

Sorry, da berät euch einer völlig falsch, dass Ding geht in die Hose!

Kgruber am 27 Feb 2015 12:24:00

Hallo, kurz nochmals zur Beantwortung:
der Aufbau: Wand- und Dachstärke: 30mm, Bodenplatte : 40mm
Link zum Fahrgestell habe ich leider nicht, ist aber die Pritsche vom MB Sprinter 316 CDI 4x4, Auflastungsgutachten 3,8 to inbegriffen
(da unser WoMo auch mit verstärkter Vorder- und Hinterachse sowie Dämpfer ab Werk bestellt wurde).
Die Tanks sind recht klein, 70l Frischwasser und 60 l Abwasser.

An Stephan:
Zu den 3,5 to will ich jetzt nichts mehr sagen, für uns muss das so sein. Wegen Felgen und Reifen: geht mal zu orc.de und da zu Hochlastfelgen und Reifen,
dann wirst Du feststellen, dass die ORC Spezialisten für den Sprinter 4x4 genau diese Kombination empfehlen. Hab auch mit ORC Kunden auf der CMT 2015 gesprochen,
geht voll in Ordnung! Trotzdem danke für die Überlegung!

dylan08 am 27 Feb 2015 12:34:27

Hallo,

auch von mir Glückwunsch zu der Entscheidung.
Und es wäre schön, wenn du trotz der Gewichtsdiskussion weiter den Fortschritt berichtest. Am Besten mit Bildern.
Bin bei sowas gerade total neugierig 8)

Wir sind auch kurz davor einen neuen zu bestellen. Planung und Zeichnungen stehen. Jetzt gehts ans Finetuning :-)

Acki am 27 Feb 2015 12:35:02

Kgruber hat geschrieben:
Die Tanks sind recht klein, 70l Frischwasser und 60 l Abwasser.
...


Da besteht aber schon ein wenig ein Widerspruch zum Titel-Attribut "Autark" ... :gruebel:

Kgruber am 27 Feb 2015 12:47:52

Hallo Ulrich,

weitere Bilder habe ich vermutlich nächste Woche Freitag, da wohl schon mit den GFK Außenwänden, mal sehen.

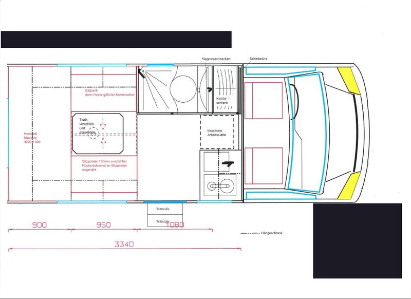
wie sieht denn Eure Planung aus, Aufteilung innen. Zur Info: das ist unsere "Einrichtung":


neuf11 am 27 Feb 2015 12:51:02

. . . diese Räder habe ich auch, voll zufrieden insbesondere mit den General Grabber AT 2.

Trotz der erforderlichen Ableitung der Hinterachse immer noch ausreichend für 3,5 to; für 3,88 to wird's auch noch reichen, mit einem Heckträger würde ich allerdings erst rechnen und dann wiegen.

Viele
Wolfgang

Anzeige

  • Die neuesten 10 Themen
  •  
  • Die neuesten 10 Reiseberichte
  • Die neuesten 10 Stellplätze

Brauchtet Ihr Wintercamper schon einmal Schneeketten?
Winterschlafplatz gefunden - welche Abdeckung fürs Womo?
Alle Rechte vorbehalten ©2003 - 2026 AGB - Datenschutzerklaerung - Kontakt